このページではJavaScriptを使用しています。

株式会社オープンコム

プライバシーマーク
お問い合わせフォーム

〒211-0004 神奈川県川崎市中原区新丸子東2-888

コンパクトデータセンター7つの特徴
Ⅰ.地震:Earthquake
データを保管するサーバは、建物内に設置しデータを保護します。もし地震が起こった場合、大切なデータが保管されたサーバの安全は確保されるのでしょうか。我々は下記の対応で、お客様の大切なデータをお守りいたします。
1.構造計算による耐震性の確保

一級建築士の資格を持つ構造設計者が、コンパクトデータセンターの構造計算を行い、震度6~7程度の地震に耐えうる構造とします。

図:構造計算イメージ
2.シンプルな平面計画による耐震性の向上

建物の構造は「鉄骨造」とし、矩形を基本としたコンパクトでシンプルな平面計画とします。重心(建物の重さの中心)と剛心(建物の剛さの中心)の距離を近づけ、偏心距離を小さくすることで、地震時の揺れに対し過大な変形を避け、バランスを取ることにより建物の倒壊を防ぐことが可能です。※偏心距離とは・・・重心と剛心の距離のこと

図:耐震性イメージ
3.サーバ固定による転倒保護

サーバは、住宅で考えると大切な洋服を収納するクローゼットと同じ置き物です。置き物であるがゆえに、地震時には建物の揺れと別の動きをする場合があります。クローゼットに転倒防止を施すように、サーバにも同じような対策が必要です。私たちは、サーバの転倒を保護するため、アンカー等を用いて建物自体と堅固なつくりとします。

図:サーバ固定イメージ
Ⅱ.火事:fire
コンパクトデータセンターを建築する場所は、必ずしも余裕のある敷地というわけではありません。建物が密集した市街地に建築しなければいけない場合、もし隣接建物が火事になった場合、サーバの安全は確保されるのでしょうか?我々は下記の対応で、お客様の大切なデータをお守りいたします。
1.類焼の防御

下記のような外壁材も用いることにより、建物の外壁の防火性を高めることで類焼を防ぎます。

・ALC

珪石(けいせき)、セメント、生石灰などを主原料に鉄筋を組んだ型枠に注入して高温高圧の養生釜でつくる軽量気泡コンクリートのことです。多孔質で断熱性が高く、重さはコンクリートの1/4。無機質で耐火性にも富んでいます。

参考:ALC協会 http://www.alc.gr.jp/

図:類焼の防御
・窯業系サイディング

窯業系(ようぎょうけい)サイディングは、セメントなどを主原料に、繊維質の木片や無機物を混ぜて強化、押し出し成形し、表面に塗装を施した外壁材です。軽量で胴縁などに釘や金具で留め付けるだけで施工が簡単で品質も均一なことが特徴です。耐熱性、耐火性、耐水性などに優れ、バリエーションも豊富なため広く用いられています。

参考:ニチハ株式会社 http://www.nichiha.co.jp/

図:窯業系サイディング
・金属系サイディング

金属系サイディングは、鉄やアルミニウムなどの板材に、発泡系樹脂断熱材を補強材として成形された外壁材です。非常に軽量ですので、施工が楽といったメリットがあります。金属のため、出隅や入隅部以外は釘をそのままサイディングに打ちつけるのではなく、サイディングが重なる部分に釘を打つのが一般的な施工なので、釘の跡などが目立たず、綺麗な仕上がりになります。耐熱性、耐火性、耐水性などに優れていますが、凹凸をあまり大きく出来ませんので、比較的シンプルな柄が多いです。

参考:アサヒトステム http://www.asahitostem.co.jp

図:金属系サイディング
・モルタル下地塗装

セメントと砂を混ぜて水で練ったモルタル下地に、樹脂系の素材や漆喰、珪藻土などを塗装する方法。塗る素材や仕上げ方によっていろいろな表情が生まれるため、外観に個性を出したい方などから支持されています。樹脂素材の吹き付けは最も一般的で、安価に施工できる。塗装方法によっては、雨漏れやクラックによる構造躯体の腐朽などが懸念されるため、細かな規定が定められています。防水シートの上にラス張りされた下地に下塗り、中塗り、上塗りの3回セメントモルタルを塗るように性能保証住宅標準仕様では定められています。セメントモルタル塗りを選択される方は、こういった仕様をしっかりと確認するようにして下さい。

図:モルタル下地塗装
[外壁材比較一覧]
- 窯業系サイディング 金属系サイディング ALC セメントモルタル塗り
価格
バリエーション
耐衝撃性
耐久性
メンテナンス性
耐火性
施工性
2.火災による建物の倒壊を防御

建築基準法では、低層建築物の主要構造部(柱、梁、壁、床、屋根、階段)が火災時に変形などの損傷が生じない加熱時間(耐火時間)を1時間と定めています。これは、隣家への火災の延焼を防止し、火熱のための変形や倒壊をしない構造とすることが求められているためです。コンパクトデータセンターは、鉄骨造なので、主要構造に耐火被覆等を行うことで、耐火建築物とし、火災による建物の倒壊を防ぎます。

図:倒壊の防御1
図:倒壊の防御2
図:倒壊の防御3

参考:

ロックウール工業会 http://www.rwa.gr.jp/

吉野石膏株式会社 http://yoshino-gypsum.com/

ニチアス株式会社 http://www.nichias.co.jp/

Ⅲ.水:Water・Inundation
昨今、地球温暖化の影響による自然環境の変化によって、集中的かつ局所的な豪雨やそれに伴う河川の氾濫等が話題となっている。万が一、建物が浸水した場合、サーバの安全は確保されるのでしょうか?我々は下記ようなの対応で、お客様の大切なデータをお守りいたします。
1.屋内に漏水センサーを設置

周辺に河川のある地域にコンパクトデータセンターを建築する場合、私たちは、事前にハザードマップを確認し、浸水事例を調べ対応します。サーバ転倒保護の固定で、床面から嵩上げされることにより、ある程度の浸水対策を講じることができますが、必要であれば漏水センサーを屋内に設置し、サーバー下面まで浸水することを事前にキャッチしすることで、データ移行等の作業ができるようにします。

参考:エクサイト株式会社 http://www.exsight.co.jp/

図:漏水センサー
2.集中豪雨に対して建物自体で対応

予期しない集中豪雨や河川の氾濫等により、建物の浸水を事前に防ぎたい場合、大切なサーバを2階に設置することで、浸水による対策を施すことが可能です。

図:豪雨対策
3.地震による津波があった場合・・・

2011年の東日本大震災以降、地震時の津波の対応について、気にされる方もいらっしゃることと思います。鉄筋コンクリート造の建物が倒壊するなど、津波には地震以上の力が建物に加わることがわかっています。そのような場合にも「サーバを守りたい」というお客様に対して、私たちは随時相談に応じますので、お気軽にお声かけください。

Ⅳ.電気:Electric・Energy
2011年の東日本大震災以降、既存電力会社からのエネルギー供給の不安定化による計画的な停電が問題となりました。もし予期しない停電があった場合、サーバの安全性は確保されるのでしょうか?我々は下記の対応で、お客様の大切なデータをお守りいたします。
1.省エネルギー対策

停電以前の対策として、エネルギーの省力化により消費する電力を少なくすることは、継続的に建物を利用していく上で大切な要素です。コンパクトデータセンターは、断熱材の設置による空調負荷の低減や、LED照明の設置による消費電力の軽減等によりエネルギーの省力化に貢献します。

参考:Panasonic http://panasonic.jp/

図:LED照明
2.非常用発電機

予期せぬ停電があった場合でも、非常用発電機を設置することにより、停電後の稼働を可能とします。コンパクトデータセンターでは、非常用発電機を標準装備とすることで、お客様の大切なデータを守ると共に、停電の際でもデータ移行等の対応ができるように対処しています。

参考:shindaiwa http://www.yamabiko-corp.co.jp/shindaiwa-japan/

図:発電機
3.再生可能エネルギーの活用

お客様のご要望に応じ、限りある資源を活用したエネルギーを使うのではなく、太陽光発電等の自然を利用した再生可能エネルギーも積極的に対応します。

参考:SHARP http://www.sharp.co.jp/sunvista/

図:太陽光発電
Ⅴ. セキュリティ:Security
大切なデータが、ネットワーク上でコピーされる以外に、サーバを保管する建築物内へ進入し、サーバへのダイレクトアクセスによりデータが盗まれる危険はないのでしょうか?我々は下記の対応で、お客様の大切なデータをお守りいたします。
1.ダブルセキュリティ

サーバへのアクセスは、1次セキュリティと2次セキュリティによるダブルのセキュリティを設けることで、コンパクトデータセンター内への不法な侵入を防ぎます。また、2種以上の錠前を併用することにより、セキュリティ性能の向上を図ります。

・1次セキュリティ

建物外壁面に設置した扉にセキュリティをかけることにより、建物への侵入を防ぎます。

・2次セキュリティ

建物外壁面に設置した扉にセキュリティをかけることにより、建物への侵入を防ぎます。

図:セキュリティ
2.セキュリティシステムの参考例
テンキー錠 図:テンキー錠
カード錠 図:カード錠
シリンダー錠 図:シリンダー錠
南京錠 図:南京錠

・テンキー錠:参考 株式会社長沢製作所 http://www.nagasawa-mfg.co.jp/

・カード錠:参考 美和ロック株式会社 http://www.miwa-lock.co.jp/

・シリンダー錠:参考 シャーロック株式会社 http://www.sherlock.co.jp/

・南京錠:参考 清水株式会社 http://www.shimizu-net.co.jp//

Ⅵ. 室内環境:Server-Environment
サーバは、室内の温度に影響されやすい精密機械です。またサーバは、動作時に熱を発すると同時に機器に熱がこもってしまうと動作不良を起こしかねません。お客様の大切なデータを保護するために、室内環境の安定化は必須条件でもあります。我々は下記の対応で、お客様の大切なデータをお守りいたします。
1.コールドアイルコンテインメント

コンパクトデータセンターの冷却システムは、冷気の囲い込みによる「コールドアイルコンテインメント」を採用することで、室内環境の安定化を図ります。部屋全体を冷やした場合、熱気と冷気が混じり合ってしまい、サーバ機器の適切な冷却が行えませんが、「コールドアイルコンテインメント」は、壁に配置した空調機とサーバ機器の配置により、アイル(通路)をつくり、そこで冷気を囲い込み、熱気と流れが交じり合わない工夫を行います。また、サーバ機器から発せられる熱気は、"気体の温度が上がると膨張し密度が低下し気体の重量が軽くなる"特性を活かし、外壁面上部に換気口を設け、熱気を外部に逃がす工夫を行います。

図:室内環境
2.消防設備対策

コンパクトデータセンターを設置する場所によっては、冷気を囲い込んだアイル(通路)内に火災感知設備や消火設備(スプリンクラーなど)の設置が必要な場合があります。設置場所などに応じた特定の要件については、所轄消防署との協議が必要となります。

Ⅶ. 建築:Architecture
これまで、6つの視点からコンパクトデータセンターの概要を説明いたしました。この建物が設置される場所の条件つまり、敷地の広さや用途地域などの建築環境によって、コンパクトデータセンターの計画はそれぞれ異なります。我々は3つの参考プラン例を示し、ご相談を受けたお客様の期待に応えられるよう対応し、お客様の大切なデータをお守りいたします。
1.設置環境(用途地域制限)

コンパクトデータセンターの建築用途は、「事務所」又は「倉庫」の扱いとなります。 (確認申請時に改めて、申請機関に確認が必要です。)建築用途により、建築可能な用途地域及び建物規模が制限されます。

用途地域内の建築物の用途制限 事務所等(床面積≦150㎡) 倉庫(2階建て以下)※自家用で危険物を貯蔵しない
第一種低層住居専用地域 × ×
第二種低層住居専用地域 × ×
第一種中高層住居専用地域 × ×
第二種中高層住居専用地域 △(2階以下) △(床面積1,500㎡以下)
第一種住居地域 △(床面積3,000㎡以下)
第二種住居地域
準住居地域
近隣商業地域
準工業地域
工業地域
工業専用地域
  • 住居専用地域では、事務所や倉庫を単独で建築できません。
  • 兼用住宅とする場合、延床面積の1/2以上を居住の用に供する必要があります。事務所は50㎡以下とし、倉庫は延床面積の1/2以下とする必要があります。

※発電機の容量については、別途行政確認が必要です。

2.標準仕様

壁(外壁):ALC(軽量気泡コンクリート)※柱等には耐火被覆

(内壁):軽量鉄骨下地・プラスターボード

断熱材:GW充填 ※断熱兼防音対策

床:RCタタキ仕上

天井:軽量鉄骨下地・プラスターボード ※梁等には耐火被覆

屋根:ALC(軽量気泡コンクリート) ※シールによる防水対策

屋上:防水仕上

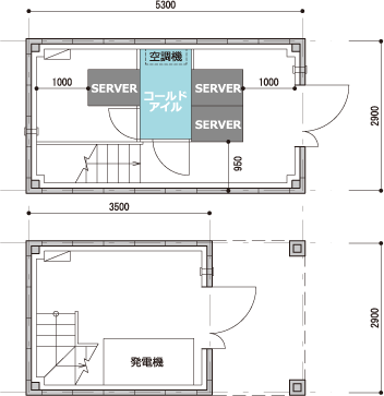
3.参考プラン例

A:スタンダートタイプ(面積15.37㎡)

※発電機は屋上に設置

スタンダードタイプ図面 図:スタンダートタイプ

B:セカンドフロアタイプ(面積25.52㎡)

※発電機は屋上に設置

セカンドフロアタイプ図面 図:セカンドフロアタイプ

C:コンポジットタイプ(面積18.85㎡)

コンポジットタイプ図面 図:コンポジットタイプ
設計者:株式会社せいじ建築設計事務所
お問い合わせフォーム
このページのTOPへ